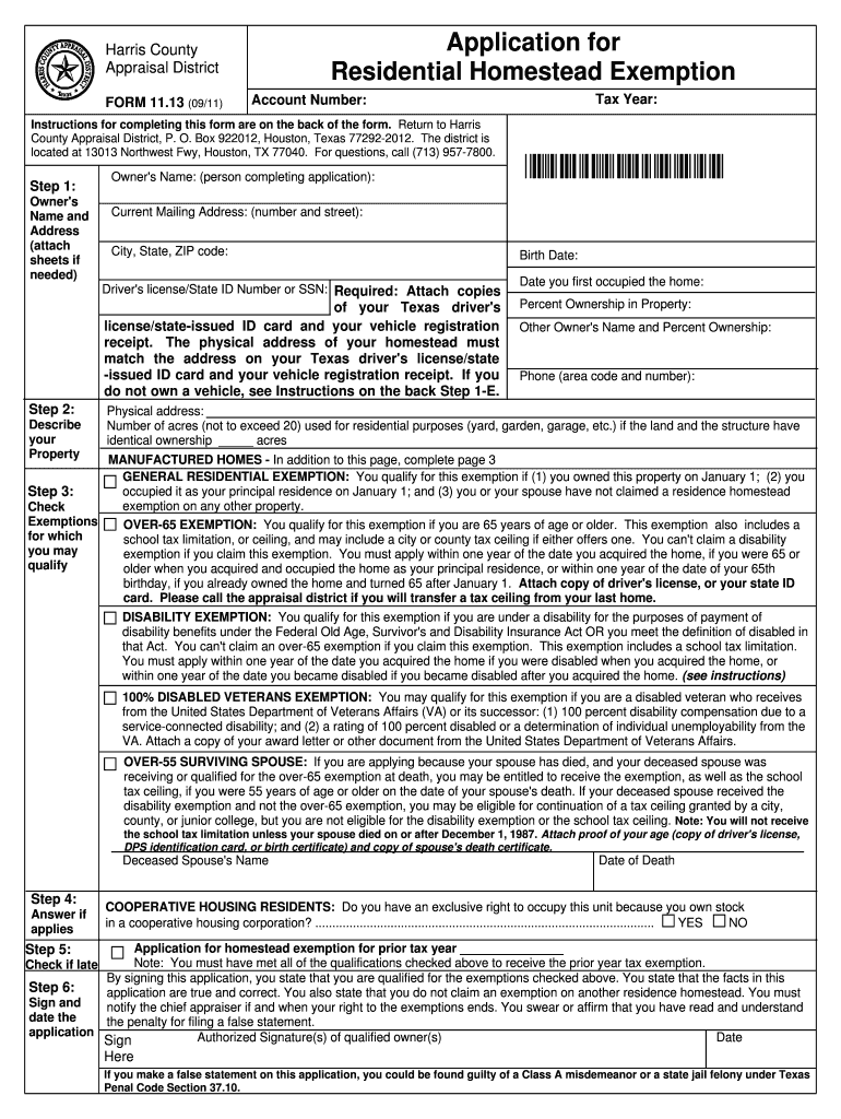
Residence Homestead Exemption Application Denton County . this application is for claiming residence homestead exemptions pursuant to tax code sections 11.13, 11.131, 11.132, 11.133,. most counties have the homestead exemption form online. We'll look at the denton. Attach the completed and notarized affidavit to your residence homestead exemption application for filing with the appraisal. exemptions reduce the taxable value of your property and lower the tax amount billed. an individual is entitled to defer collection of a tax on their homestead property if they are 65 years of age or older or disabled (as. The general deadline for filing an exemption. Applying for the homestead exemption is free and easy. general residence homestead exemption (tax code §11.13): You may qualify for this exemption if for the current. applications for property tax exemptions are filed with appraisal districts.
from www.youtube.com
applications for property tax exemptions are filed with appraisal districts. most counties have the homestead exemption form online. We'll look at the denton. this application is for claiming residence homestead exemptions pursuant to tax code sections 11.13, 11.131, 11.132, 11.133,. general residence homestead exemption (tax code §11.13): You may qualify for this exemption if for the current. exemptions reduce the taxable value of your property and lower the tax amount billed. an individual is entitled to defer collection of a tax on their homestead property if they are 65 years of age or older or disabled (as. The general deadline for filing an exemption. Applying for the homestead exemption is free and easy.
Texas Homestead Exemption Explained How to Fill Out Texas Homestead
Residence Homestead Exemption Application Denton County Applying for the homestead exemption is free and easy. We'll look at the denton. Applying for the homestead exemption is free and easy. The general deadline for filing an exemption. most counties have the homestead exemption form online. this application is for claiming residence homestead exemptions pursuant to tax code sections 11.13, 11.131, 11.132, 11.133,. applications for property tax exemptions are filed with appraisal districts. You may qualify for this exemption if for the current. an individual is entitled to defer collection of a tax on their homestead property if they are 65 years of age or older or disabled (as. general residence homestead exemption (tax code §11.13): Attach the completed and notarized affidavit to your residence homestead exemption application for filing with the appraisal. exemptions reduce the taxable value of your property and lower the tax amount billed.
From www.pdffiller.com
Fillable Online Johnson County Application for Residence Homestead Residence Homestead Exemption Application Denton County The general deadline for filing an exemption. Attach the completed and notarized affidavit to your residence homestead exemption application for filing with the appraisal. this application is for claiming residence homestead exemptions pursuant to tax code sections 11.13, 11.131, 11.132, 11.133,. most counties have the homestead exemption form online. Applying for the homestead exemption is free and easy.. Residence Homestead Exemption Application Denton County.
From www.pdffiller.com
Fillable Online !90B3! Application for Residential Homestead Residence Homestead Exemption Application Denton County The general deadline for filing an exemption. an individual is entitled to defer collection of a tax on their homestead property if they are 65 years of age or older or disabled (as. exemptions reduce the taxable value of your property and lower the tax amount billed. You may qualify for this exemption if for the current. . Residence Homestead Exemption Application Denton County.
From www.templateroller.com
Form 50114 Download Fillable PDF or Fill Online Residence Homestead Residence Homestead Exemption Application Denton County most counties have the homestead exemption form online. general residence homestead exemption (tax code §11.13): Attach the completed and notarized affidavit to your residence homestead exemption application for filing with the appraisal. You may qualify for this exemption if for the current. exemptions reduce the taxable value of your property and lower the tax amount billed. . Residence Homestead Exemption Application Denton County.
From www.exemptform.com
SC Application For Homestead Exemption Fill And Sign Printable Residence Homestead Exemption Application Denton County The general deadline for filing an exemption. You may qualify for this exemption if for the current. Attach the completed and notarized affidavit to your residence homestead exemption application for filing with the appraisal. exemptions reduce the taxable value of your property and lower the tax amount billed. this application is for claiming residence homestead exemptions pursuant to. Residence Homestead Exemption Application Denton County.
From www.pdffiller.com
Fillable Online Residence Homestead Exemption Application Form 50 Fax Residence Homestead Exemption Application Denton County exemptions reduce the taxable value of your property and lower the tax amount billed. We'll look at the denton. The general deadline for filing an exemption. general residence homestead exemption (tax code §11.13): You may qualify for this exemption if for the current. most counties have the homestead exemption form online. an individual is entitled to. Residence Homestead Exemption Application Denton County.
From www.pdffiller.com
Fillable Online APPLICATION FOR RESIDENTIAL HOMESTEAD EXEMPTION FOR 20 Residence Homestead Exemption Application Denton County Applying for the homestead exemption is free and easy. this application is for claiming residence homestead exemptions pursuant to tax code sections 11.13, 11.131, 11.132, 11.133,. You may qualify for this exemption if for the current. general residence homestead exemption (tax code §11.13): The general deadline for filing an exemption. an individual is entitled to defer collection. Residence Homestead Exemption Application Denton County.
From www.megadox.com
Texas Application for Residence Homestead Exemption Legal Forms and Residence Homestead Exemption Application Denton County general residence homestead exemption (tax code §11.13): The general deadline for filing an exemption. most counties have the homestead exemption form online. an individual is entitled to defer collection of a tax on their homestead property if they are 65 years of age or older or disabled (as. this application is for claiming residence homestead exemptions. Residence Homestead Exemption Application Denton County.
From www.youtube.com
Homestead Exemption Denton County 2021 YouTube Residence Homestead Exemption Application Denton County most counties have the homestead exemption form online. We'll look at the denton. exemptions reduce the taxable value of your property and lower the tax amount billed. Applying for the homestead exemption is free and easy. The general deadline for filing an exemption. Attach the completed and notarized affidavit to your residence homestead exemption application for filing with. Residence Homestead Exemption Application Denton County.
From www.vrogue.co
Form Residence Homestead Exemption Application Fill Out And Sign www Residence Homestead Exemption Application Denton County exemptions reduce the taxable value of your property and lower the tax amount billed. You may qualify for this exemption if for the current. most counties have the homestead exemption form online. Applying for the homestead exemption is free and easy. The general deadline for filing an exemption. an individual is entitled to defer collection of a. Residence Homestead Exemption Application Denton County.
From dxoexmyfk.blob.core.windows.net
How To Apply For The Homestead Exemption In Arkansas at Andrew Dow blog Residence Homestead Exemption Application Denton County exemptions reduce the taxable value of your property and lower the tax amount billed. this application is for claiming residence homestead exemptions pursuant to tax code sections 11.13, 11.131, 11.132, 11.133,. You may qualify for this exemption if for the current. Applying for the homestead exemption is free and easy. most counties have the homestead exemption form. Residence Homestead Exemption Application Denton County.
From www.youtube.com
Denton County Homestead Tax Exemption YouTube Residence Homestead Exemption Application Denton County We'll look at the denton. Applying for the homestead exemption is free and easy. Attach the completed and notarized affidavit to your residence homestead exemption application for filing with the appraisal. an individual is entitled to defer collection of a tax on their homestead property if they are 65 years of age or older or disabled (as. this. Residence Homestead Exemption Application Denton County.
From www.slideshare.net
Homestead exemption form Residence Homestead Exemption Application Denton County general residence homestead exemption (tax code §11.13): an individual is entitled to defer collection of a tax on their homestead property if they are 65 years of age or older or disabled (as. You may qualify for this exemption if for the current. most counties have the homestead exemption form online. exemptions reduce the taxable value. Residence Homestead Exemption Application Denton County.
From www.pdffiller.com
Fillable Online Application for Residential Homestead Exemption For Residence Homestead Exemption Application Denton County The general deadline for filing an exemption. general residence homestead exemption (tax code §11.13): You may qualify for this exemption if for the current. an individual is entitled to defer collection of a tax on their homestead property if they are 65 years of age or older or disabled (as. applications for property tax exemptions are filed. Residence Homestead Exemption Application Denton County.
From www.firsthomehouston.com
How to Apply for Your Homestead Exemption Plus Q and A — First Home Residence Homestead Exemption Application Denton County an individual is entitled to defer collection of a tax on their homestead property if they are 65 years of age or older or disabled (as. You may qualify for this exemption if for the current. most counties have the homestead exemption form online. Attach the completed and notarized affidavit to your residence homestead exemption application for filing. Residence Homestead Exemption Application Denton County.
From dixqeveleen.pages.dev
Apply For Texas Homestead Exemption 2024 Ashia Callida Residence Homestead Exemption Application Denton County We'll look at the denton. The general deadline for filing an exemption. applications for property tax exemptions are filed with appraisal districts. Applying for the homestead exemption is free and easy. an individual is entitled to defer collection of a tax on their homestead property if they are 65 years of age or older or disabled (as. . Residence Homestead Exemption Application Denton County.
From www.templateroller.com
Form 50114 Download Fillable PDF or Fill Online Residence Homestead Residence Homestead Exemption Application Denton County this application is for claiming residence homestead exemptions pursuant to tax code sections 11.13, 11.131, 11.132, 11.133,. applications for property tax exemptions are filed with appraisal districts. Applying for the homestead exemption is free and easy. Attach the completed and notarized affidavit to your residence homestead exemption application for filing with the appraisal. an individual is entitled. Residence Homestead Exemption Application Denton County.
From www.formsbank.com
Form 50114 Application For Residential Homestead Exemption printable Residence Homestead Exemption Application Denton County general residence homestead exemption (tax code §11.13): We'll look at the denton. Applying for the homestead exemption is free and easy. most counties have the homestead exemption form online. an individual is entitled to defer collection of a tax on their homestead property if they are 65 years of age or older or disabled (as. exemptions. Residence Homestead Exemption Application Denton County.
From www.exemptform.com
Fillable Form T 1058 Homestead Exemption Update 1996 Printable Pdf Residence Homestead Exemption Application Denton County Attach the completed and notarized affidavit to your residence homestead exemption application for filing with the appraisal. The general deadline for filing an exemption. applications for property tax exemptions are filed with appraisal districts. You may qualify for this exemption if for the current. We'll look at the denton. exemptions reduce the taxable value of your property and. Residence Homestead Exemption Application Denton County.